$79 REScheck, Manual J, Manual S. $99 Manual D
  • Connect
  • Buy Now
  • Reviews
  • Rescheck Blog
  • Rescheck Info
  • Rescheck Resources
    • Rescheck Blog
    • Buy Now
    • Municipality Solutions
    • Rescheck Podcast
    • Rescheck Desktop Download
    • Rescheck Web Link
    • Research and Development
  • Comcheck Commercial Reports
  • Buy Now
Select Page

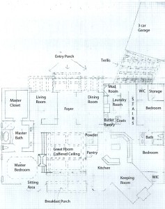
MastroFloorPlan